Leave a Message

Thank you for your message. I will be in touch with you shortly.

Explore My Properties

Property Description

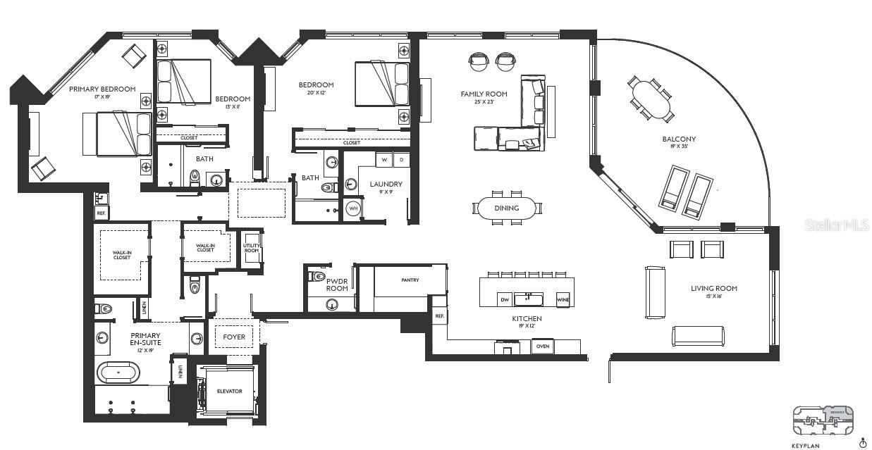
Under Construction. Residence 603 at The Edge Sarasota embodies refined urban luxury in the heart of downtown's vibrant Arts District. Construction is actively moving along, with an anticipated move-in date of fall/winter 2026, offering buyers the opportunity to secure a premier residence in one of Sarasota's most exciting boutique developments.

This impeccably designed 3-bedroom, 3-bath corner residence spans over 3,500 square feet of living space on the 6th floor, framed by dramatic floor-to-ceiling windows and sweeping city views. The open-concept layout features soaring ceilings and a chef's kitchen outfitted with Italian cabinetry, quartz countertops, and top-tier Sub-Zero and Wolf appliances--thoughtfully curated for elevated everyday living.

Step onto your private terrace to take in the energy of Sarasota below while enjoying the calm of your own modern sanctuary. Owners at The Edge enjoy exclusive access to resort-caliber amenities, including a resort-style pool with cabanas, state-of-the-art fitness center, yoga studio, sauna, secure parking, and pet-friendly features designed with convenience in mind.

With only 27 residences, The Edge offers an intimate, boutique living experience just steps from Sarasota's best restaurants, galleries, and cultural destinations. Every detail reflects the city's creative, walkable, and unapologetically bold spirit.

Renderings shown are conceptual and reflect the interior design and finish standards of the community.

Overview

Property Status
For Sale
Lot Size
0.55 Acres
MLS ID
A4680034
Property Type
Condo
Year Built
2025

Features & Amenities

Total Area
4,043 Sq.Ft.
Neighborhood
Manasota Key
Architecture Styles
Contemporary
View Description
City, Park/Greenbelt, Pool, Trees/Woods, Water
Stories
10
Garage Spaces
2.0
Water Source
Public
Utilites
BB/HS Internet Available, Cable Available, Electricity Available, Natural Gas Connected, Public, Sewer Connected, Underground Utilities, Water Connected
Pool
In Ground, Lighting, Self Cleaning
Roof
Concrete, Other
Lot Features
Cleared, Corner Lot, City Limits, Near Marina, Near Public Transit, Sidewalk, Paved
Parking
Assigned, Covered, Guest, Basement
Heat Type
Central, Exhaust Fan, Natural Gas, Zoned
Air Conditioning
Central Air, Zoned
Laundry Room
Inside, Laundry Room
Appliances
Built-In Oven, Cooktop, Dishwasher, Disposal, Dryer, Electric Water Heater, Exhaust Fan, Indoor Grill, Range Hood, Refrigerator, Washer
Other Interior Features
Eat-in Kitchen, Elevator, High Ceilings, Living Room/Dining Room Combo, Open Floorplan, Primary Bedroom Main Floor, Solid Surface Counters, Stone Counters, Walk-In Closet(s)
Sewer
Public Sewer
Substructure
Slab
HOA Amenities
Clubhouse, Elevator(s), Fitness Center, Gated, Lobby Key Required, Maintenance, Other, Pool, Recreation Facilities, Security, Spa/Hot Tub, Vehicle Restrictions, Wheelchair Access
Security Features
Fire Alarm, Fire Sprinkler System, Gated Community, Key Card Entry, Secured Garage/Parking, Security Gate, Smoke Detector(s)
Other Exterior Features
Balcony, Dog Run, Lighting, Sidewalk, Sliding Doors
Elementary School
Alta Vista Elementary
Middle School
Booker Middle
High School
Booker High
Sales Price
$3,495,000
HOA
$3,849/mo
Zoning
DTC

Downloads

290 COCOANUT AVE #603

Schedule a Tour

I would love to show you this beautiful property. Please select your preferred date and time below. I will be in touch shortly to confirm your appointment.

Thank you

for your interest in 290 COCOANUT AVE #603, SARASOTA, FL 34236

290 COCOANUT AVE #603
Navigate
Manasota Key

Explore Manasota Key

read more

Mortgage Calculator

Estimate your monthly mortgage payment, including the principal and interest, property taxes, and HOA. Adjust the values to generate a more accurate rate.
$0,000 Your Payment 20 15 65
$0,000 Your Payment

I'm Interested In

290 COCOANUT AVE #603

or
  • CallAmber Watson

    License #SL3472511

    (229) 392-8892
  • Featured Listings & Past Transactions

    Portfolio

    • Rosewood Residences on Lido Key Under Contract

      $9,400,000

      1000 Benjamin Franklin Drive , Sarasota, FL 34236

    • 290 COCOANUT AVE #1004 Pending

      $4,600,000

      290 COCOANUT AVE #1004, SARASOTA, FL 34236

      • 2 Beds
      • 3 Baths
      • 3,154 Sq.Ft.
    • 290 COCOANUT AVE #604 For Sale

      $3,570,000

      290 COCOANUT AVE #604, SARASOTA, FL 34236

      • 2 Beds
      • 3 Baths
      • 3,154 Sq.Ft.
    • 290 COCOANUT AVE #603 For Sale

      $3,495,000

      290 COCOANUT AVE #603, SARASOTA, FL 34236

      • 3 Beds
      • 4 Baths
      • 3,532 Sq.Ft.
    • 290 COCOANUT AVE #5D Pending

      $3,311,700

      290 COCOANUT AVE #504, SARASOTA, FL 34236

      • 2 Beds
      • 3 Baths
      • 3,154 Sq.Ft.
    • 290 COCOANUT AVE #6A For Sale

      $3,270,000

      290 COCOANUT AVE #601, SARASOTA, FL 34236

      • 3 Beds
      • 4 Baths
      • 3,270 Sq.Ft.
    • 5231 MAHOGANY RUN AVE #321 For Sale

      $335,000

      5231 MAHOGANY RUN AVE #321, SARASOTA, FL 34241

      • 2 Beds
      • 2 Baths
      • 1,684 Sq.Ft.
    • 5230 HYLAND HILLS AVE #1325 For Sale

      $320,000

      5230 HYLAND HILLS AVE #1325, SARASOTA, FL 34241

      • 2 Beds
      • 2 Baths
      • 1,433 Sq.Ft.
    View All

    Follow Us On Instagram