Leave a Message

Thank you for your message. I will be in touch with you shortly.

Explore My Properties

Property Description

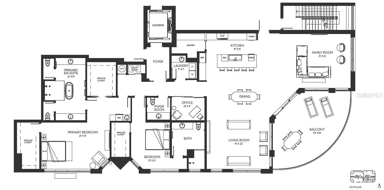
Under Construction. Experience elevated luxury in this expansive 3,154 sq ft Residence D, featuring 2 bedrooms plus a private office, 2.5 baths, and a seamless indoor-outdoor lifestyle. A grand open living area, designer kitchen with premium appliances, and a 33'x18' balcony create an ideal setting for entertaining. The generously scaled primary suite offers dual walk-in closets and a spa-inspired en-suite bath, while the additional bedroom provides comfort and privacy for guests. A rare private rooftop terrace--exclusive to this residence--adds an unmatched outdoor retreat perfect for sunset lounging, dining, or personal customization.

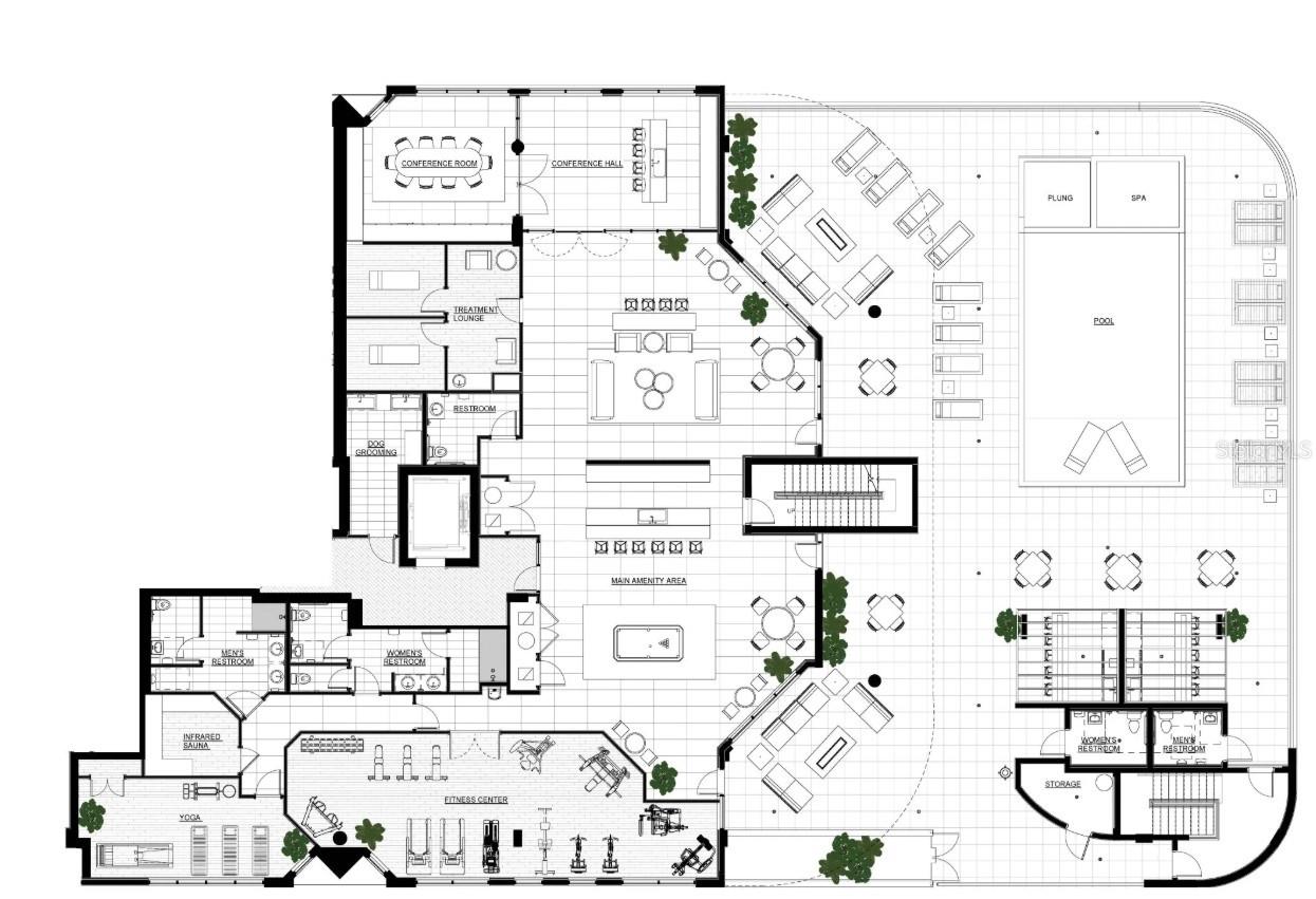
Residents of The Edge Sarasota enjoy a wellness-centered amenity collection, including a state-of-the-art fitness center, resort-style pool, private massage room, and spaces designed to support a balanced, healthy lifestyle. Set in the heart of downtown, you'll live steps from celebrated dining, boutique shopping, arts venues, waterfront parks, and the city's energetic cultural scene. This residence delivers exceptional quality, refined craftsmanship, and a truly elevated way of living in one of Sarasota's most sought-after addresses. Construction has officially topped off, with anticipated move-ins scheduled for the end of this year.

Overview

Property Status
Pending
Lot Size
0.55 Acres
MLS ID
A4678010
Property Type
Condo
Year Built
2025

Features & Amenities

Total Area
3,631 Sq.Ft.
Neighborhood
Manasota Key
Architecture Styles
Contemporary
View Description
City, Park/Greenbelt, Pool, Trees/Woods, Water
Stories
10
Garage Spaces
3.0
Water Source
Public
Utilites
BB/HS Internet Available, Cable Available, Cable Connected, Electricity Available, Natural Gas Available, Public, Sewer Connected, Water Available, Water Connected
Pool
Gunite, Heated, In Ground, Lighting
Roof
Concrete, Other
Lot Features
Corner Lot, City Limits, Near Golf Course, Near Marina, Near Public Transit, Oversized Lot, Sidewalk, Paved
Parking
Assigned, Covered, Electric Vehicle Charging Station(s), Garage Door Opener, Guest, Other, Basement
Heat Type
Central, Exhaust Fan, Natural Gas, Zoned
Air Conditioning
Central Air, Zoned
Laundry Room
Inside, Laundry Room
Appliances
Built-In Oven, Cooktop, Dishwasher, Disposal, Dryer, Electric Water Heater, Exhaust Fan, Microwave, Range Hood, Refrigerator, Washer
Other Interior Features
Eat-in Kitchen, Elevator, High Ceilings, Living Room/Dining Room Combo, Open Floorplan, Primary Bedroom Main Floor, Solid Surface Counters, Walk-In Closet(s)
Sewer
Public Sewer
Substructure
Slab
HOA Amenities
Clubhouse, Elevator(s), Fitness Center, Gated, Maintenance, Other, Pool, Recreation Facilities, Security, Spa/Hot Tub, Storage, Vehicle Restrictions, Wheelchair Access
Security Features
Fire Alarm, Fire Sprinkler System, Gated Community, Key Card Entry, Security Fencing/Lighting/Alarms, Secured Garage/Parking, Security Gate, Security Lights, Security System Owned, Smoke Detector(s)
Other Exterior Features
Balcony, Dog Run, Lighting, Outdoor Grill, Sidewalk, Sliding Doors, Storage
Elementary School
Alta Vista Elementary
Middle School
Booker Middle
High School
Booker High
Sales Price
$4,600,000
HOA
$1,146/mo
Zoning
DTC

Downloads

290 COCOANUT AVE #1004

Schedule a Tour

I would love to show you this beautiful property. Please select your preferred date and time below. I will be in touch shortly to confirm your appointment.

Thank you

for your interest in 290 COCOANUT AVE #1004, SARASOTA, FL 34236

290 COCOANUT AVE #1004
Navigate
Manasota Key

Explore Manasota Key

read more
290 COCOANUT AVE #1004
explore in 3d

Mortgage Calculator

Estimate your monthly mortgage payment, including the principal and interest, property taxes, and HOA. Adjust the values to generate a more accurate rate.
$0,000 Your Payment 20 15 65
$0,000 Your Payment

I'm Interested In

290 COCOANUT AVE #1004

or
  • CallAmber Watson

    License #SL3472511

    (229) 392-8892
  • Featured Listings & Past Transactions

    Portfolio

    • Rosewood Residences on Lido Key Under Contract

      $9,400,000

      1000 Benjamin Franklin Drive , Sarasota, FL 34236

    • 290 COCOANUT AVE #1004 Pending

      $4,600,000

      290 COCOANUT AVE #1004, SARASOTA, FL 34236

      • 2 Beds
      • 3 Baths
      • 3,154 Sq.Ft.
    • 290 COCOANUT AVE #604 For Sale

      $3,570,000

      290 COCOANUT AVE #604, SARASOTA, FL 34236

      • 2 Beds
      • 3 Baths
      • 3,154 Sq.Ft.
    • 290 COCOANUT AVE #603 For Sale

      $3,495,000

      290 COCOANUT AVE #603, SARASOTA, FL 34236

      • 3 Beds
      • 4 Baths
      • 3,532 Sq.Ft.
    • 290 COCOANUT AVE #5D Pending

      $3,311,700

      290 COCOANUT AVE #504, SARASOTA, FL 34236

      • 2 Beds
      • 3 Baths
      • 3,154 Sq.Ft.
    • 290 COCOANUT AVE #6A For Sale

      $3,270,000

      290 COCOANUT AVE #601, SARASOTA, FL 34236

      • 3 Beds
      • 4 Baths
      • 3,270 Sq.Ft.
    • 5231 MAHOGANY RUN AVE #321 For Sale

      $335,000

      5231 MAHOGANY RUN AVE #321, SARASOTA, FL 34241

      • 2 Beds
      • 2 Baths
      • 1,684 Sq.Ft.
    • 5230 HYLAND HILLS AVE #1325 For Sale

      $320,000

      5230 HYLAND HILLS AVE #1325, SARASOTA, FL 34241

      • 2 Beds
      • 2 Baths
      • 1,433 Sq.Ft.
    View All

    Follow Us On Instagram